
Seahorse II (82 feet long and a beamy 23 feet) was built to the highest standard for the Norwegian fjords and life in the high northern latitudes. A 10mm Swedish steel hull, air conditioned and heated throughout, and winter sailing for the British Royal Navy for months at a time in the western approaches means that our wee ship is more than enough for our summer adventures in the Gulf Stream warmed waters of the west coast of Scotland. Powerful enough to cruise the many spectacular islands and lochs of the Inner Hebrides and Outer Hebrides, yet small enough to anchor in remote and hauntingly beautiful places that the larger passenger ships are unable to visit. With a maximum speed of 11 knots (from a 350 hp Volvo diesel) and with 15 tons of fuel and 10 tons of fresh water Seahorse II is a sturdy, go-anywhere, yet comfortable adventurer.
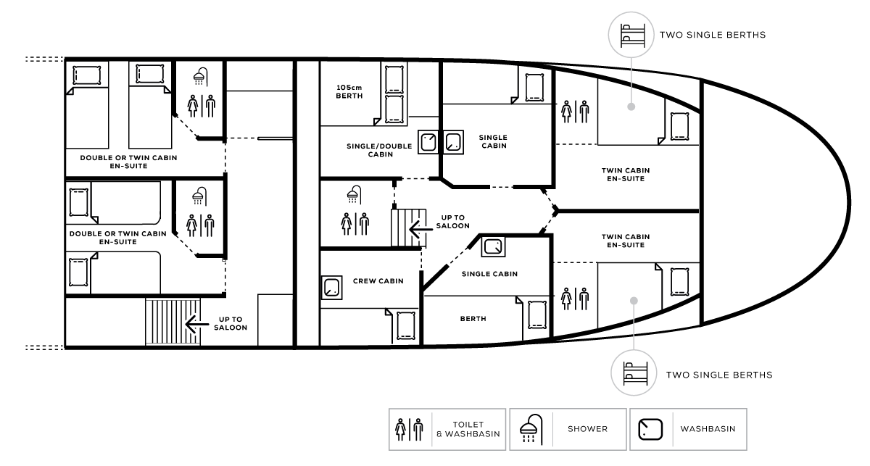
On Seahorse II we take a maximum of eleven guests. There are two double/twin en-suites (with shower, toilet and washbasin), two twin semi-ensuites (with toilet and washbasin), two single cabins and one single cabin with a larger 105 cm wide bed (all with a washbasin). There is a wonderful deck saloon where we dine and view the spectacular Hebridean wildlife. A bridge full of the best navigational aids, a high foredeck for wildlife spotting and a boat deck for lounging, she is the perfect vessel for your life afloat.
On the spacious aft deck (ideal for alfresco dining when the boat is at anchor or under way) we have a powerful little crane for launching Seahorse II's tender, two sea kayaks and paddle board. Here there is also plenty of room for your own equipment such as kayaks and paddleboards.
Please note these drawings are not to scale and are a diagrammatic representation of the vessel's layout.
You will have a crew of three taking you on your Scottish small ship cruise. Your professional skipper is passionate about boats, sailing, and the natural environment of the islands and sea lochs of the Inner and Outer Hebrides. He is more than happy to share his knowledge of the area to those on board while ensuring his shipmates have as much fun as possible. You will have your own on board chef who provides wonderful meals, locally-sourced and freshly prepared from the galley and a bosun/crewmember who will be there to provide assistance whenever you will need it.