Speideren – An ex-Norwegian Rescue Ship

Speideren, 75 feet long with a cruising range of 4,000 nautical mile, was built in Norway in 1969 as a Rescue Ship (one of 13 such vessels) for the NSSR - the Norwegian Society for Sea Rescue. Sturdily built with two powerful, reliable engines, a mighty hull, deep keel and strong superstructure, Speideren (which is Norwegian for “Scout”) worked the unpredictable waters of the North and Arctic Seas, rescuing and towing many a crippled vessel.

Following decommissioning, in 1994 a conversion was carried out to create a fast, luxurious cruising vessel for a private owner and very recently further improvements have been made which include a viewing deck, en-suite accommodation, and a well-lit deck saloon. Today Speideren makes an ideal small cruising ship for taking guests of all ages comfortably, swiftly and safely on adventures to the remote inlets and lochs of Scotland’s Wild Isles, travelling as far away as St Kilda in the Atlantic Ocean. 

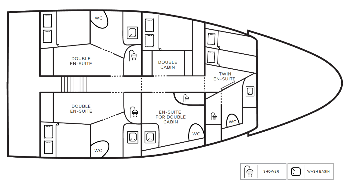
En-suite Accommodation

The saloon is where everyone dines and socialises and where everyone enjoys a convivial atmosphere that is encouraged by shipboard life aboard this ex-Norwegian Recue Ship. Cabins are warm and comfortable, with eight berths in four cabins that are situated in the forward part of the vessel. The three double and one twin en-suite cabins, intimate and mellow, are fitted out in traditional varnished hardwood with soft antique light. Two of the double cabins are especially spacious. The third double cabin with the adjacent en-suite (for your sole) has a slightly smaller bed.

The decks are spacious with comfortable seating on the sheltered after deck for comfortable wildlife observing. You also have plenty of deck space in which to bring your own equipment such as kayaks and paddleboards. There is an on board tender in which the crew takes you safely ashore to visit the villages and remote parts of Wild Scotland.

Accommodation Layout - Lower Deck

Your Crew

Your professional skipper is passionate about boats, sailing, and the natural environment of the islands and sea lochs of the Inner and Outer Hebrides. He is more than happy to share his knowledge of the area to those on board while ensuring his shipmates have as much fun as possible. You will have your own on board chef who provides wonderful meals, locally-sourced and freshly prepared from the galley and a bosun/crewmember who will be there to provide assistance whenever you will need it.